Volver a la página principal EPS
Galería EPS PORFOLIO EXPRESIÓN GRÁFICA DIBUJO ARQUITECTÓNICO Narración gráfica NUESTROS ALUMNOS Casa Curutchet Casa Curutchet
Búsqueda Avanzada
Canal RSS para esta Foto

Casa Curutchet

1. Casa Curutchet ... 25. Casa Curutchet 26. Casa Curutchet 27. Casa Curutchet 28. Casa Curutchet 29. Casa Curutchet 30. Casa Curutchet 31. Casa Curutchet ... 46. Casa Curutchet

Casa Curutchet

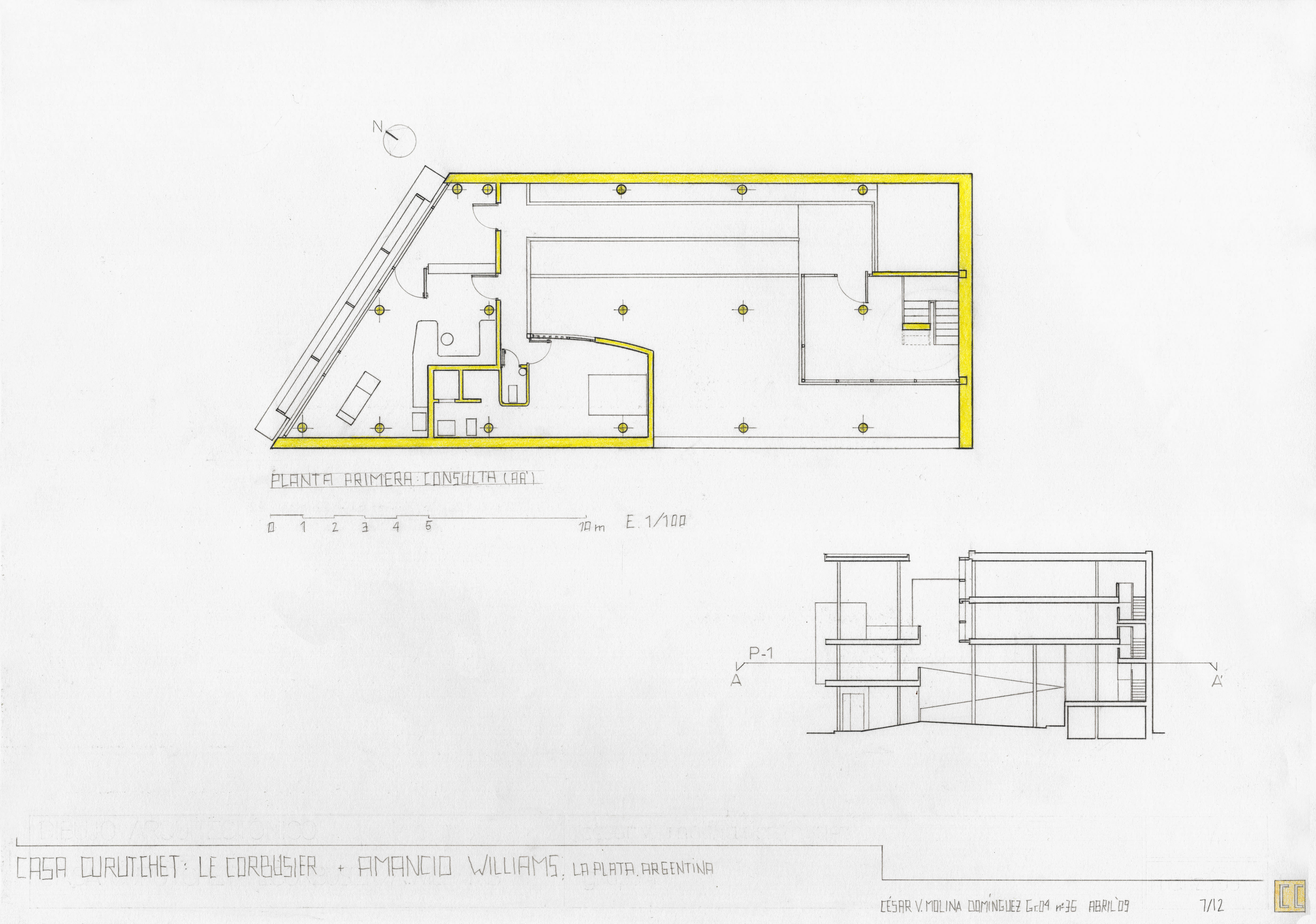
Narración gráfica de la casa del Dr. Curutchet en La Plata (Argentina, 1949-1954), obra de Le Corbusier con la supervisión de Amancio Williams.
Dibujos de César Molina Dominguez.

Escala 1/100.
Grafito y lápiz de color sobre papel opaco.

Fecha: 24/02/11
Tamaño:
Tamaño total: 4935x3464
siguienteúltimo
primero anterior
Casa Curutchet
siguienteúltimo
primero anterior
Universidad CEU San Pablo | Fundación CEU San Pablo | Visitar | Canales RSS

Escuela Politécnica Superior | Blogs | Galería EPS

Aviso legal | Política de Privacidad | Potenciado por Gallery2

Iniciar Sesión